ДЛЯ КОЖНОГО ПРОЄКТУ У ФОРМАТІ 2D CAD НЕОБХІДНО ВИЗНАЧИТИ РІВЕНЬ ДЕТАЛІЗАЦІЇ (LOD) КІНЦЕВИХ ПРОДУКТІВ НА СТАДІЇ ФОРМУВАННЯ КОМЕРЦІЙНОЇ ПРОПОЗИЦІЇ
Двовимірні архітектурні креслення, отримані з хмари точок, можуть бути як високоточними, так і високодеталізованими. Обмеженням для обох є точність, якої можна досягти в самій хмарі точок. Для більшості архітектурних креслень набору з історично сформованих масштабів 1:50 та 1:100 зазвичай більш ніж достатньо.
На етапі створення комерційної пропозиції важливо визначити вимоги та елементи, важливі для проєкту. Рівень деталізації та точності є прямо пропорційний часу, необхідному для розроблення продукту, і тому впливає як на час, так і на вартість.
Нижче ми окреслили 3 рівні деталізації (Lod) для 2D-продуктів. Їх слід взяти як орієнтири, як відправну точку. Кожен приклад можна вдосконалити або спростити для всього проєкту або окремої області відповідно до конкретних потреб Вашого проєкту.
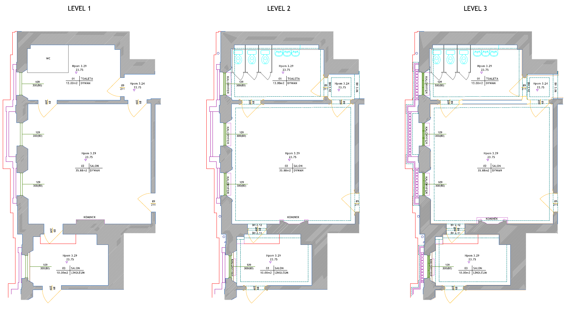
РІВЕНЬ 1
Зазвичай креслення виконують у масштабі 1:100.
Основна ескізна інформація, розрахована для планування, планів приміщення з метою орендування, планування простору, креслень протипожежної системи або техніко-економічних обґрунтувань. Включає всі основні конструктивні елементи: стіни, вікна, двері тощо. Відсутня інформація про рівень або висоту.
РІВЕНЬ 2
Зазвичай креслення виконують у масштабі 1:50, демонструючи всю структурну та архітектурну інформацію.
Рівень підлоги, висоти, основні вмонтовані меблі і обладнання.
Фасади докладно демонструватимуть архітектурні деталі. Розрізи можуть містити основні деталі фасадів за бажанням. Можна використовувати для фіксації і збереження креслень, ремонту, техніко-економічних обґрунтувань.
РІВЕНЬ 3
Зазвичай креслення виконують у масштабі 1:50, демонструючи всю структурну та архітектурну інформацію.
Рівень підлоги, висоти, вмонтовані меблі і обладнання, деталі на стелі. Може також містити більшу кількість інформації про системи вентиляції, водопостачання, теплопостачання та інші.
На фасадах декоративні елементи, такі як карнизи, каміни, барельєфи, показані в максимальному відтворенні деталей. Розрізи можуть містити детальну інформацію фасадів за бажанням. Може бути використаний для реконструкції, структурних змін, реєстрації об’єктів культурної спадщини.




