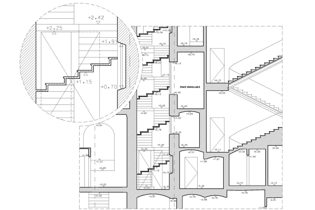
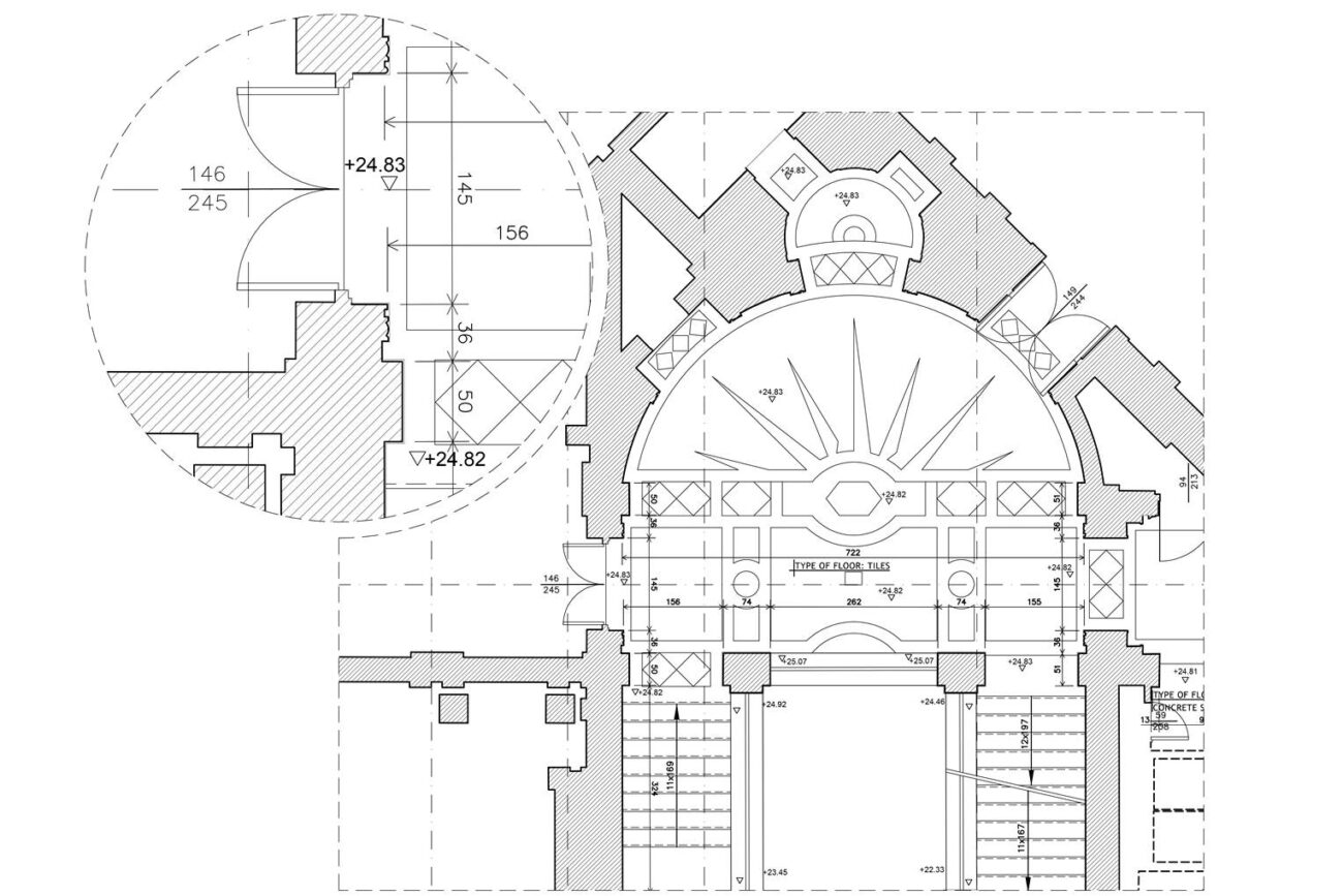
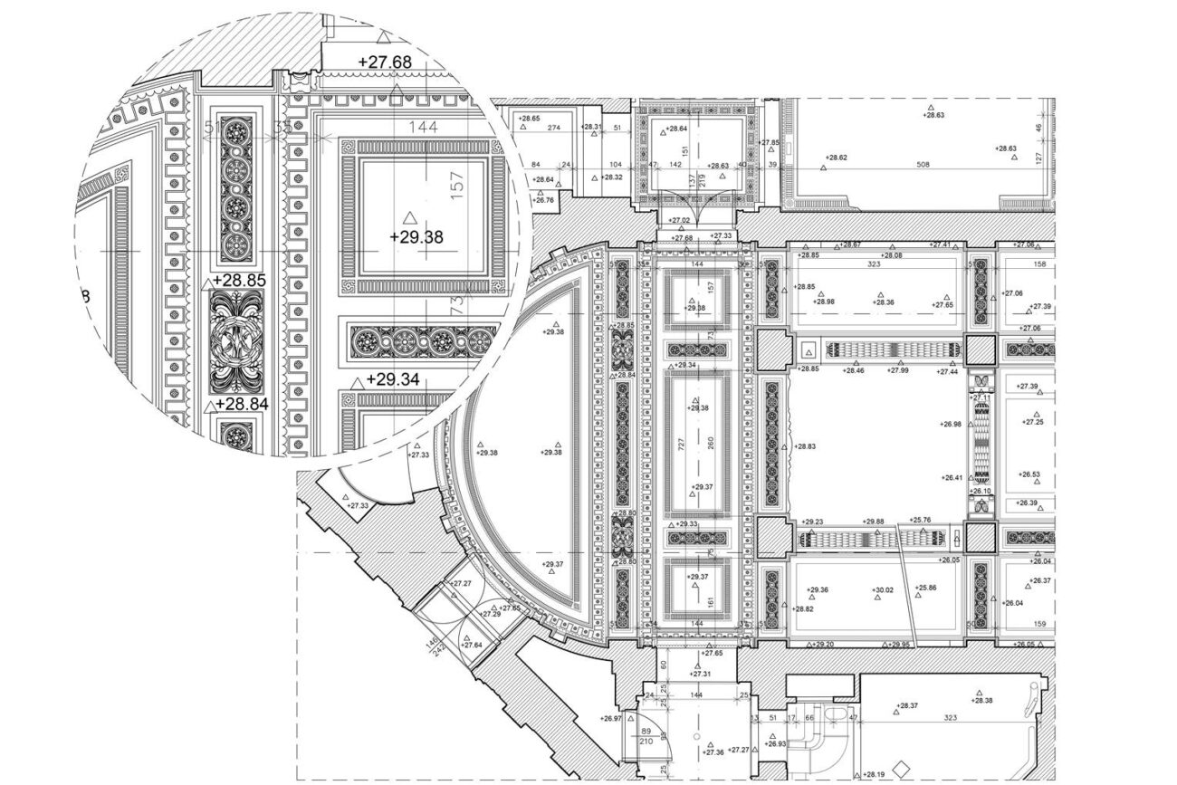
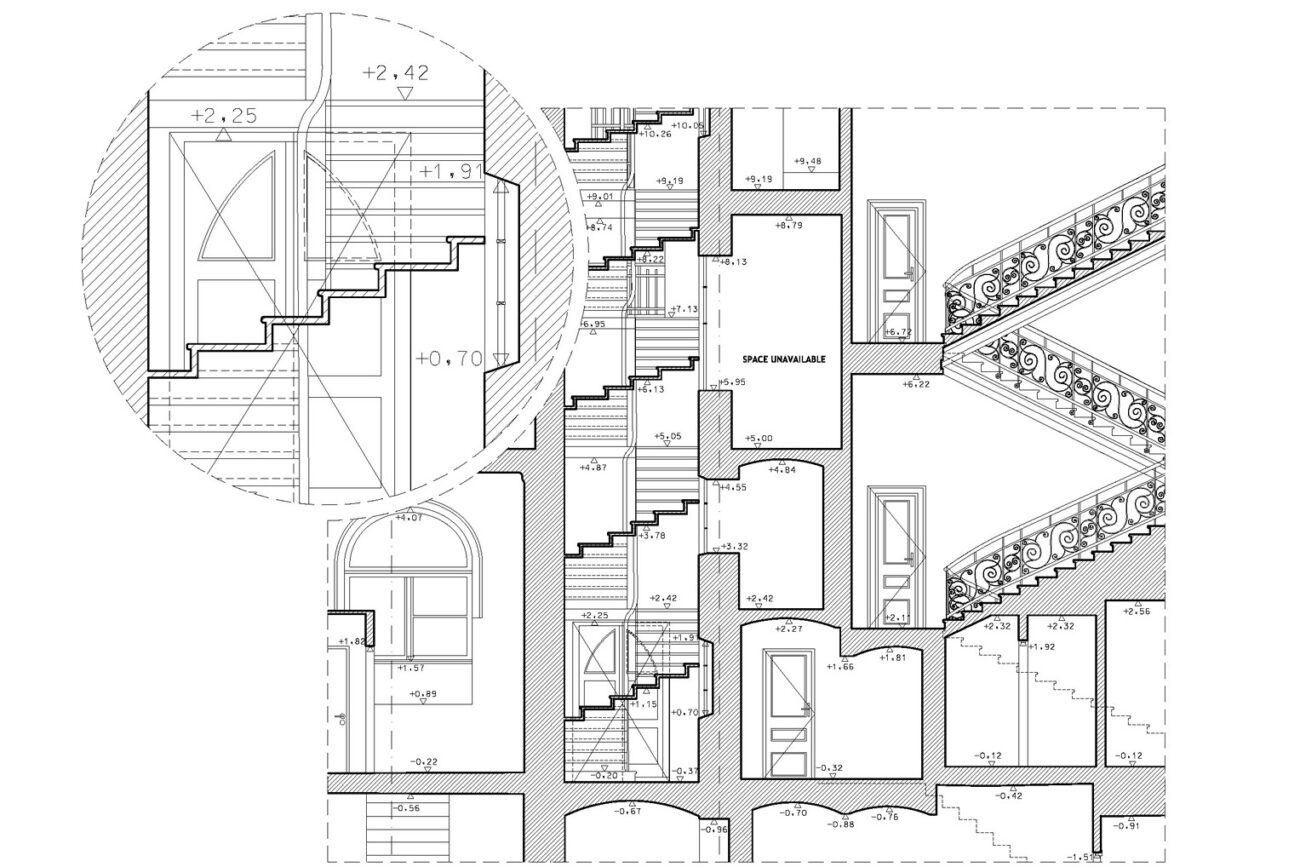
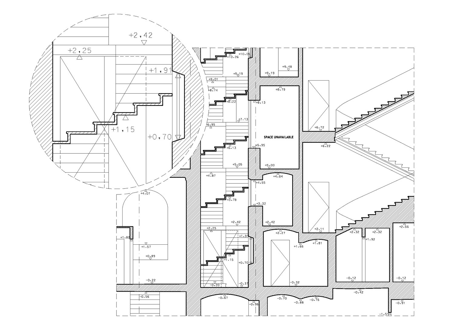
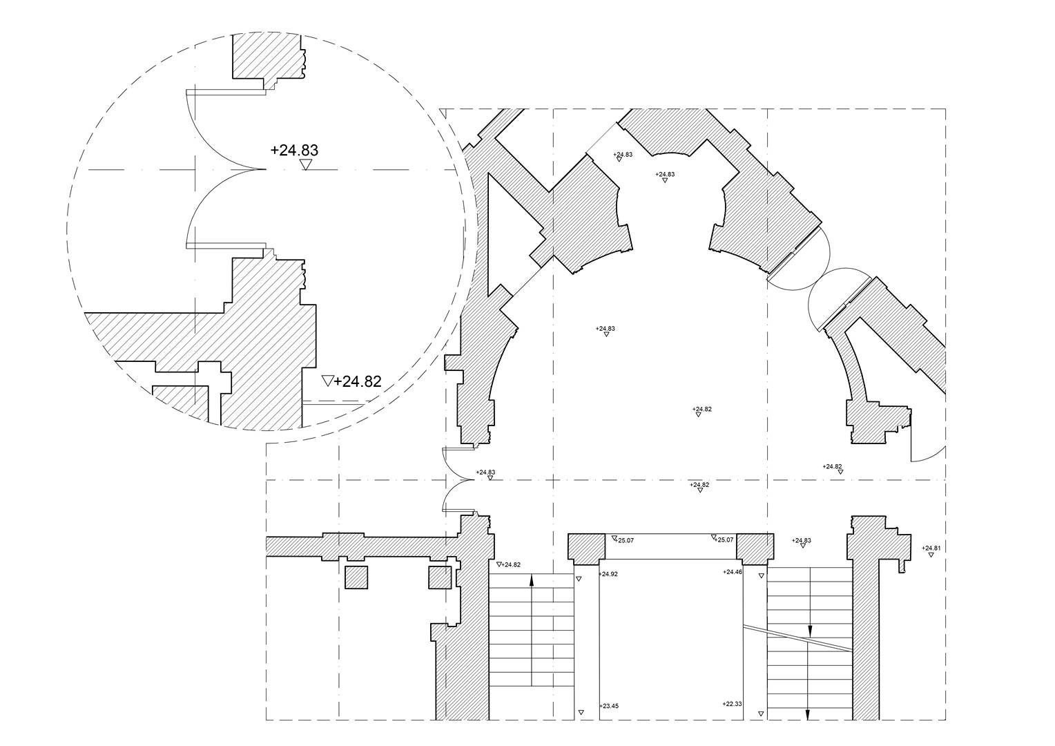
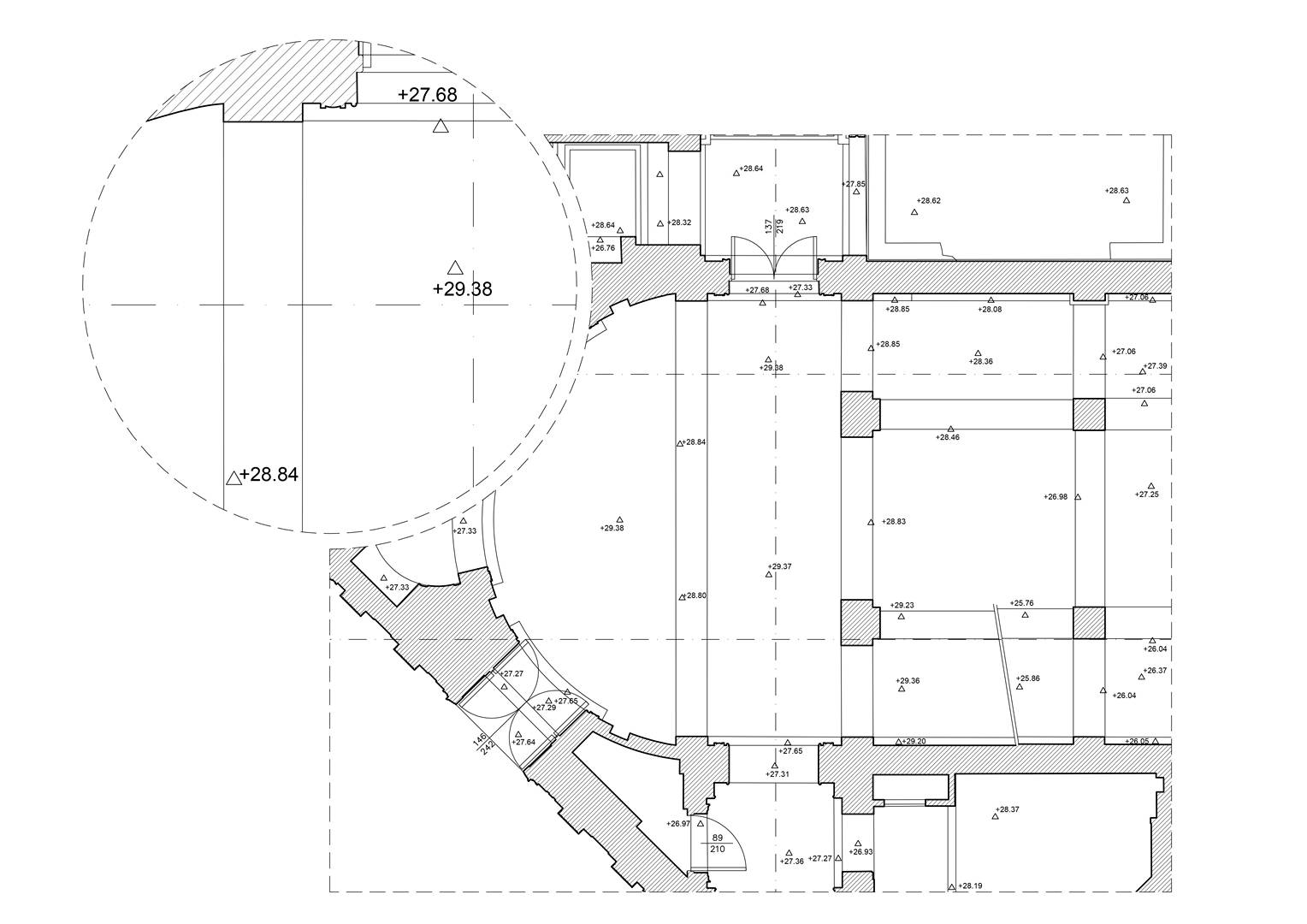
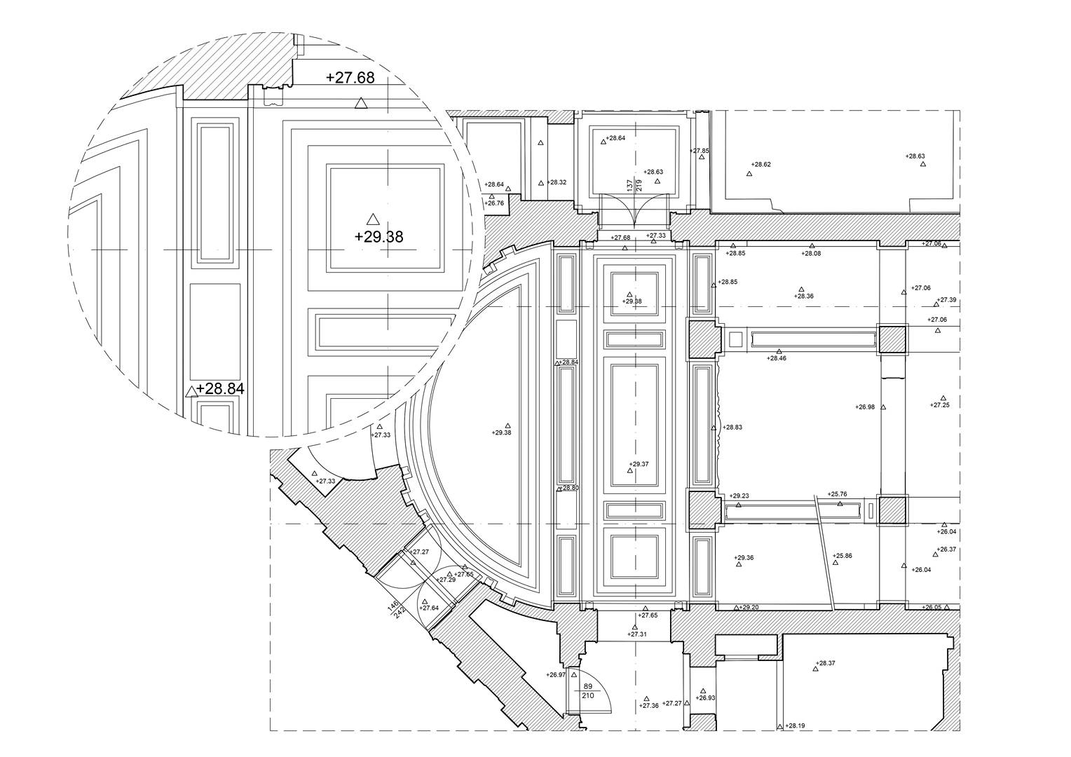
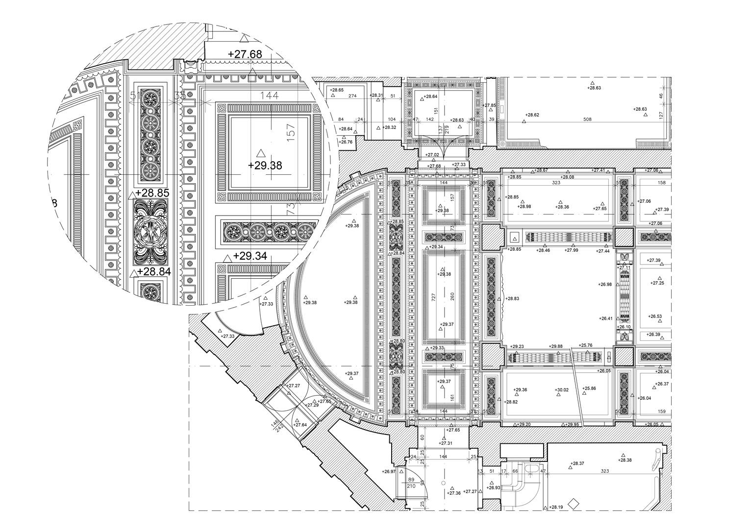
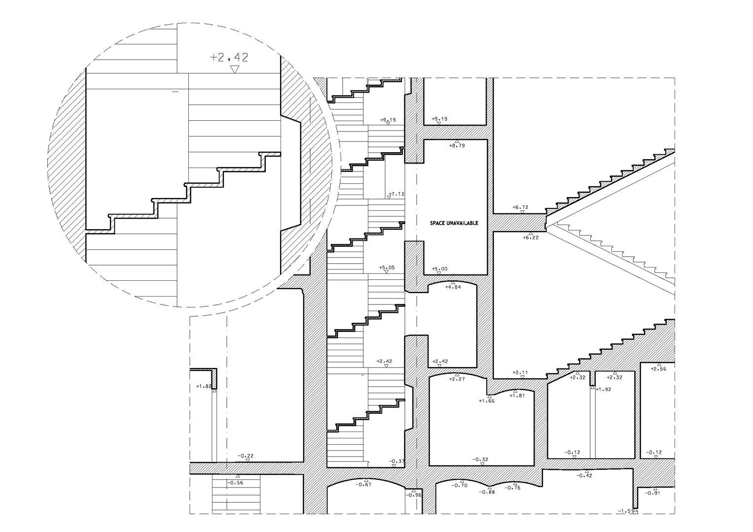
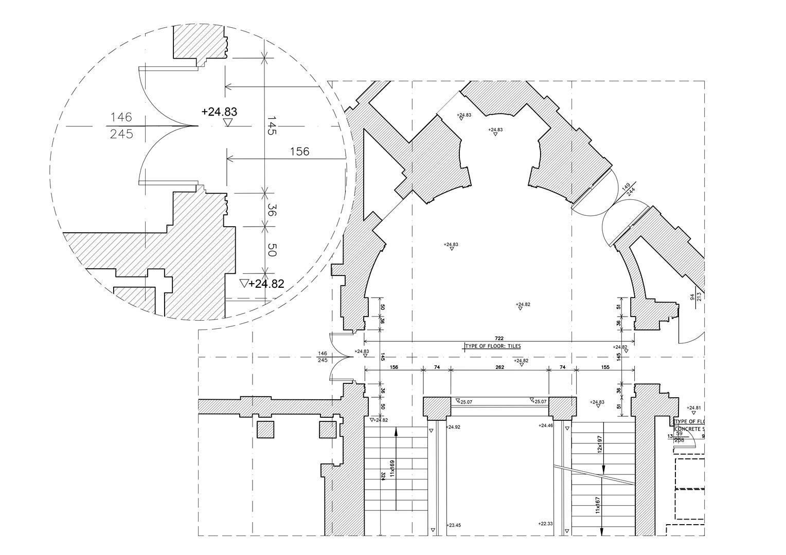
Використовуючи хмару точок як основу, ми створюємо високоточну та детальну 2D-документацію. Вона містить конкретизовані продукти, такі як плани поверхів, розрізи та види фасадів. Якщо порівнювати із традиційними методами збору даних зйомок, хмари точок пропонують набагато більшу гнучкість з точки зору генерування даних. Як і в інших проєктах виготовлення даних, специфікація є важливою. Економії часу і, отже, коштів можна досягти, усвідомлюючи необхідний рівень деталізації та точності як зараз, так і в майбутньому.
Специфікація визначатиме щільність хмари точок на етапі збору даних, а також рівень виготовлення для кінцевого продукту. Невелике планування на початку надалі допоможе заощадити на дорогих та трудомістких повторних візитах на об’єкт на пізнішій стадії . Це дозволить кінцевому користувачеві отримати максимальну вигоду від використання технології хмари точок. Наші послуги у сфері 2D у CAD включають креслення фасадів, креслення планів поверхів, креслення розрізів і стель із хмари точок.











