МІСЦЕЗНАХОДЖЕННЯ
м. Львів, Україна
ТОПОГРАФО-ГЕОДЕЗИЧНЕ ОБЛАДНАННЯ
сканери Z+F Imager 5006, Leica TCRA 1101 та тахеометр
ЗАГАЛЬНА КІЛЬКІСТЬ ВИТРАЧЕНОГО ЧАСУ
3 дні на об’єкті, приблизно 75 днів оброблення в офісі
КІНЦЕВИЙ ПРОДУКТ
Хмара точок, 2D-документація CAD, BIM-модель
3D-ОЦИФРОВАННЯ КАПЛИЦІ БОЇМІВ
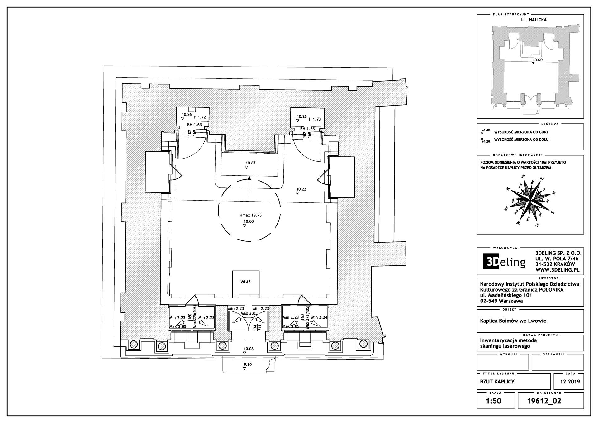
Цей проєкт, виконаний на замовлення Інституту «Полоніка» та фінансований з державних коштів, мав на меті провести інвентаризацію цієї ренесансної будівлі. В результаті ми передали 2D-документацію Каплиці, включно із векторними зображеннями всіх, навіть найдрібніших архітектурних деталей. Ми також створили текстуровану (приблизно 1 мм піксель) модель високополігональної сітки з високою роздільною здатністю.
Під час зйомки, окрім звичайного лазерного сканування, ми використовували дрон і камеру, встановлену на стовпі. Крім того, ми встановили в каплиці спеціальні будівельні риштування, щоб зафіксувати всі деталі її інтер’єру. Завдяки цьому нам вдалося отримати точні дані лазерного сканування та фотографії. Згодом ми обробили ці вхідні дані, що призвело до створення фотограмметричної документації каплиці, а також детальної 2D-документації CAD і високополігональної сітчастої 3D-моделі.
Категорії:























