МІСЦЕЗНАХОДЖЕННЯ
м. Лондон, Велика Британія
ТОПОГРАФО-ГЕОДЕЗИЧНЕ ОБЛАДНАННЯ
Лазерний сканер Z+F 5010, тахеометр Leica TCRA 1101+
Штативи
Інші аксесуари
ЗАГАЛЬНА КІЛЬКІСТЬ ВИТРАЧЕНОГО ЧАСУ
15 днів на об’єкті -1500 сканувань (1 особа) та 6 тижнів в офісі (5 осіб)
КІНЦЕВИЙ ПРОДУКТ
Хмара точок у градаціях сірого та ОС, структурна BIM-модель + MEP-модель у виконанні LOD 4, надана у форматі програми Autodesk Revit для внутрішніх 15 поверхів, 2D-документація, створена на основі 3D-моделі
НОВА БАГАТОПОВЕРХОВА ОФІСНА БУДІВЛЯ У ЦЕНТРІ ЛОНДОНА
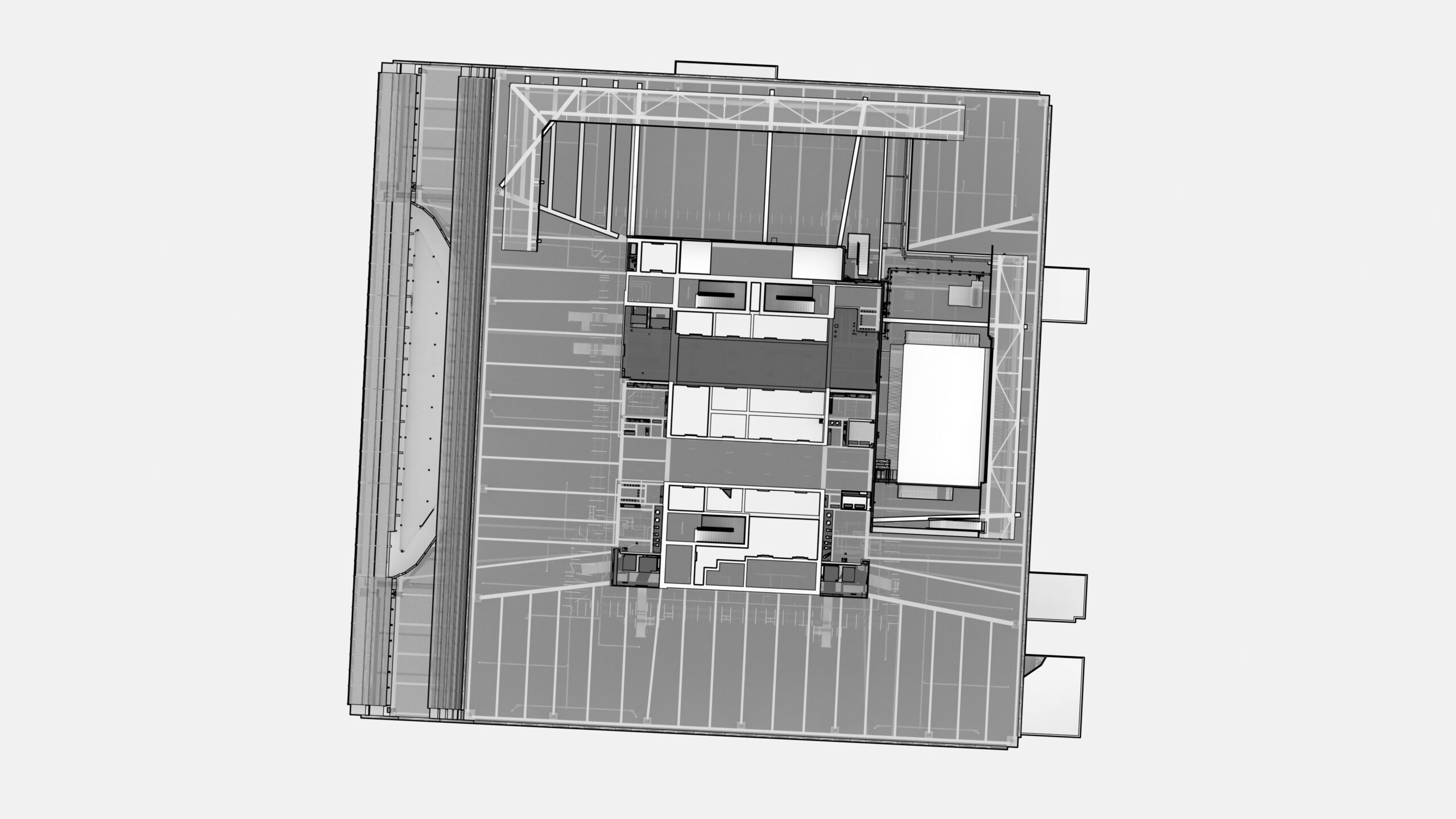
В межах проєкту було проведене лазерне 3D-сканування та BIM 3D-моделювання офісної новобудови. Клієнт замовив виготовлення виконавчої документації лише 15 останніх поверхів будівлі, даху та підвалу, усіх сходових кліток та зовнішньої частини будівлі. Незважаючи на обмежений обсяг, проєкт виявився досить масштабним: ми зробили близько 1500 окремих сканувань, зареєстрованих за підтримки незалежних контрольних точок. Це завдання було складним головним чином через висоту будівлі.
Ми створили BIM-модель з 4 рівнем деталізації таким чином, щоб можна було створити плани кожного поверху та секції з усіма відповідними описами креслень. BIM-модель включала всі інсталяційні елементи (MEP).
У представленому нижче відеозаписі продемонстровані всі результати, хмару точок, BIM-модель із MEP та оригінальні плани об’єкта.
Категорії:














