МІСЦЕЗНАХОДЖЕННЯ
Батерполь, Польща
ТОПОГРАФО-ГЕОДЕЗИЧНЕ ОБЛАДНАННЯ
Сканери Z+F Imager 5010C, Leica TCRA 1101 та тахеометр
ЗАГАЛЬНА КІЛЬКІСТЬ ВИТРАЧЕНОГО ЧАСУ
1 день на об’єкті (50 сканувань)
2 особи, близько 3 днів оброблення в офісі
КІНЦЕВИЙ ПРОДУКТ
Розрахунок деформації та основи
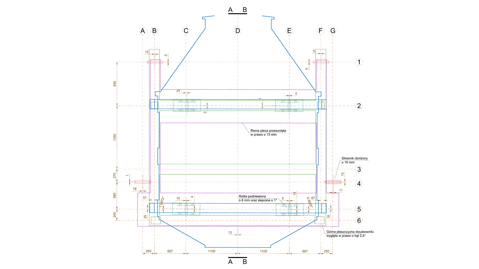
МОДЕЛЬ РОТАЦІЙНОЇ ПЕЧІ
Проєкт стосувався дослідження деформації та фундаменту печі для плавлення свинцю. Вимірювання були пов’язані з поломкою механізму позиціонування печі. Об’єкт сканували у двох станах (положеннях) роботи – нагрівання та витікання розплавленого металу, а потім піддавали геометричному аналізу. Досліджено деформацію самої печі та зміщення елементів, які спричинили зміщення печі.
Дослідження показало, що одна з основ, які тримають конструкцію, встановлена занадто низько відносно інших. У звіті запропоноване рішення виявленої проблеми.
Категорії:










