МІСЦЕЗНАХОДЖЕННЯ
м. Хшанув, Польща
ТОПОГРАФО-ГЕОДЕЗИЧНЕ ОБЛАДНАННЯ
Riegl Vz-400, Leica TCRA 1101 та тахеометр, камера Canon 5D Mark II
ЗАГАЛЬНА КІЛЬКІСТЬ ВИТРАЧЕНОГО ЧАСУ
3 дні на об’єкті, 20 днів оброблення в офісі
КІНЦЕВИЙ ПРОДУКТ
хмара точок, сітчасті моделі, ортозображення, експертиза можливості збереження та будівництва
МОСТИ ТА ВІАДУКИ НЕПОДАЛІК МІСТА ХШАНУВА
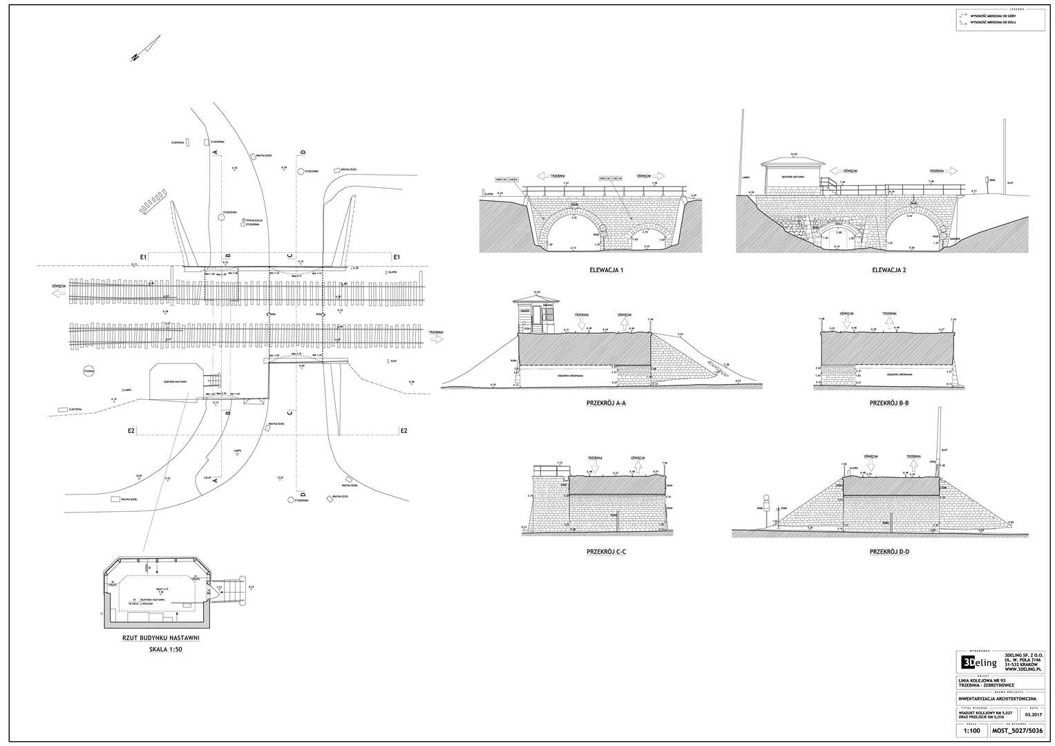
Роботи були виконані на замовлення PLK в межах проєкту модернізації залізничної лінії Освенцим-Тшебиня. Це замовлення включало масштабне реєстрування 4 споруд мостів та віадуків. Ці об’єкти належали до початкової конструкції лінії. Тому всі наші роботи проводилися відповідно до суворих інструкцій реставратора пам’яток.
Конструкції були детально відскановані та сфотографовані. У результаті це дозволило створити сітчасту модель у поєднанні з текстурами високої роздільної здатності.
Згодом на основі цього високодеталізованого набору даних ми створили метричні/ортозображення, а також традиційні 2D-плани. Останні отримані у вигляді розрізів та фасадів в CAD. Ми надали клієнтові інформацію як про будівництво, так і про стан, яка потім була використана як основа для реставраційних та консерваційних робіт.
Категорії:













