МІСЦЕЗНАХОДЖЕННЯ
м. Гнев, Польща
ТОПОГРАФО-ГЕОДЕЗИЧНЕ ОБЛАДНАННЯ
Сканери Riegl VZ-400, Leica TCRA 1101 та тахеометр
ЗАГАЛЬНА КІЛЬКІСТЬ ВИТРАЧЕНОГО ЧАСУ
8 днів на об’єкті (команда з двох осіб), 45 днів на оброблення даних
КІНЦЕВИЙ ПРОДУКТ
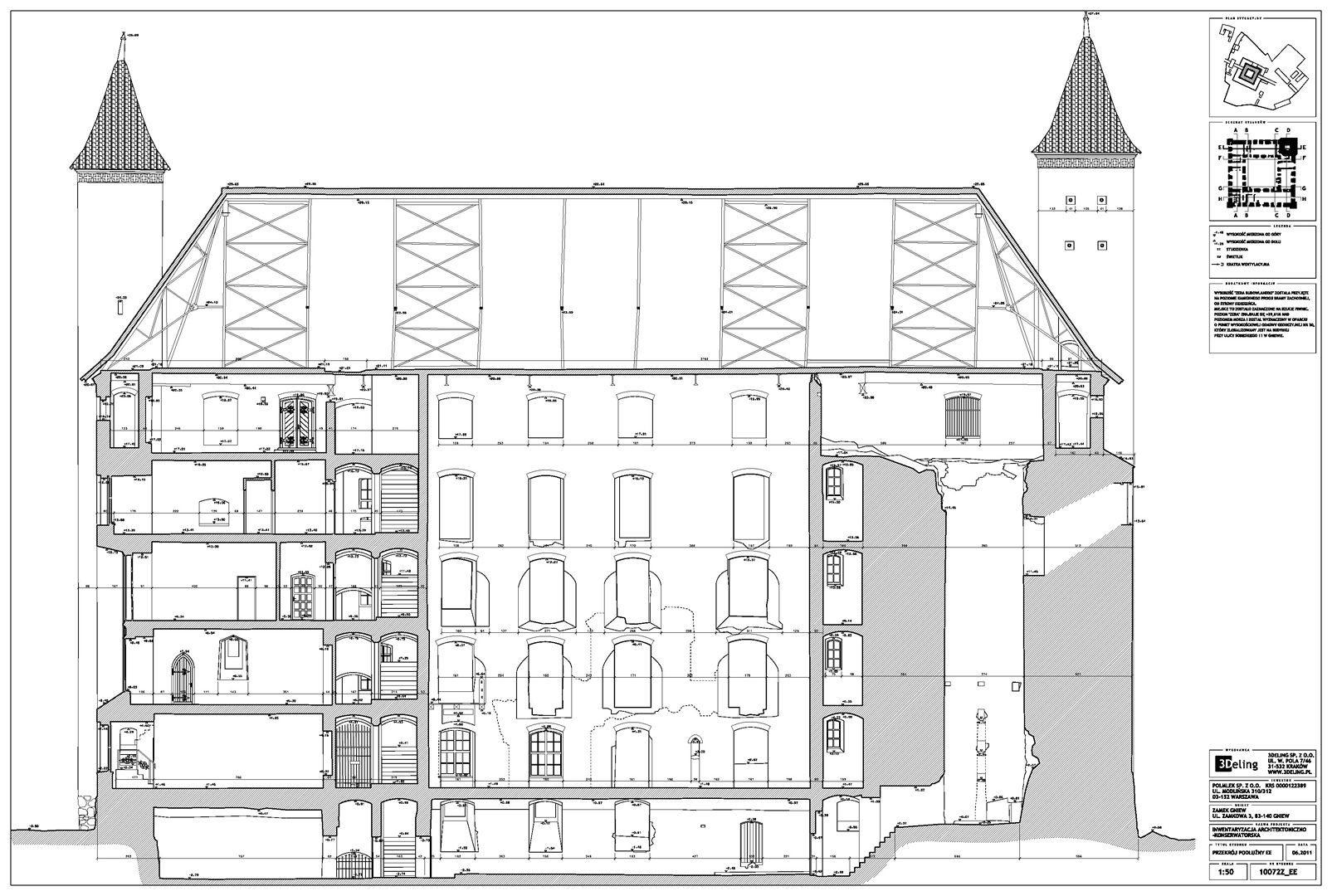
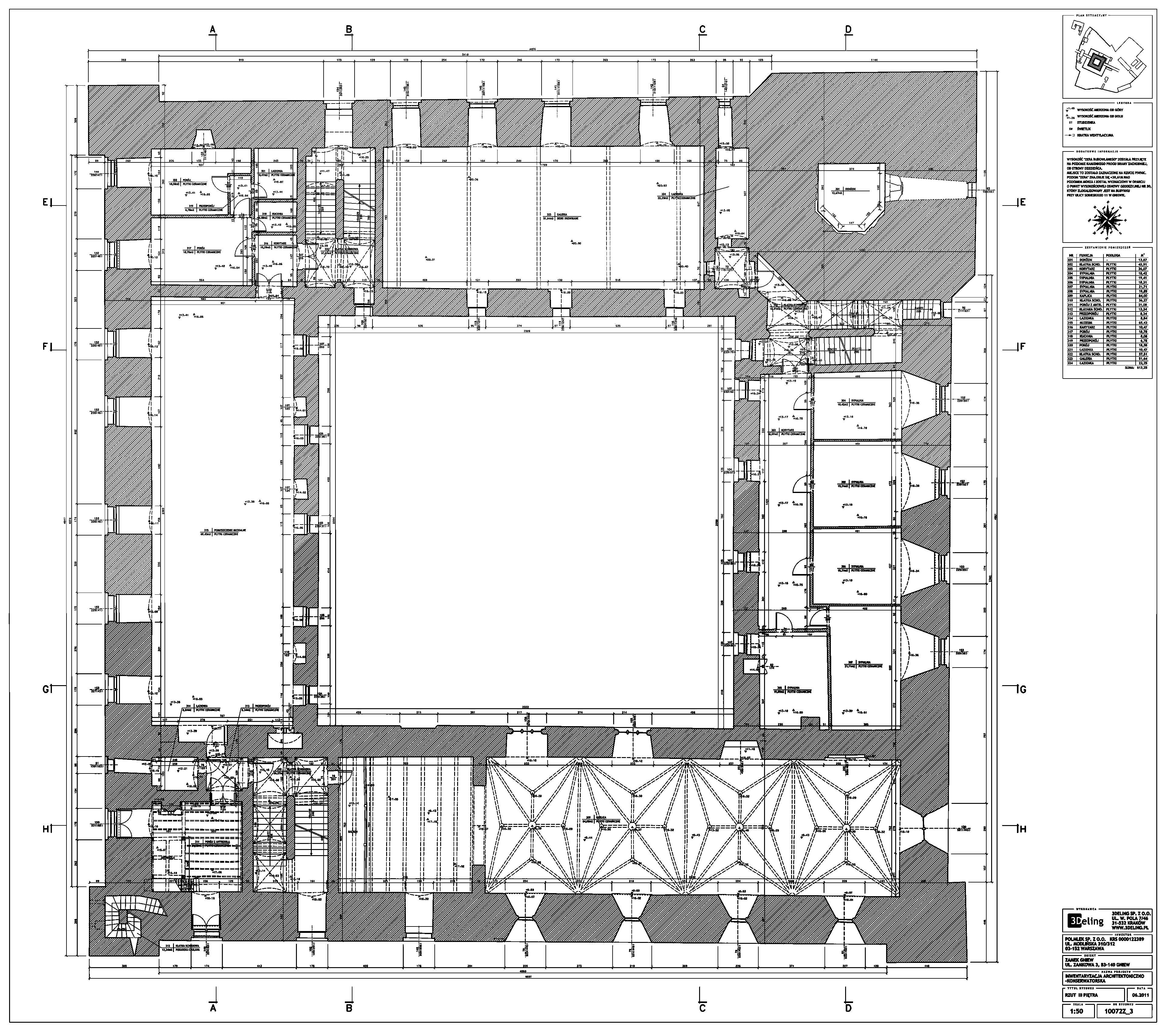
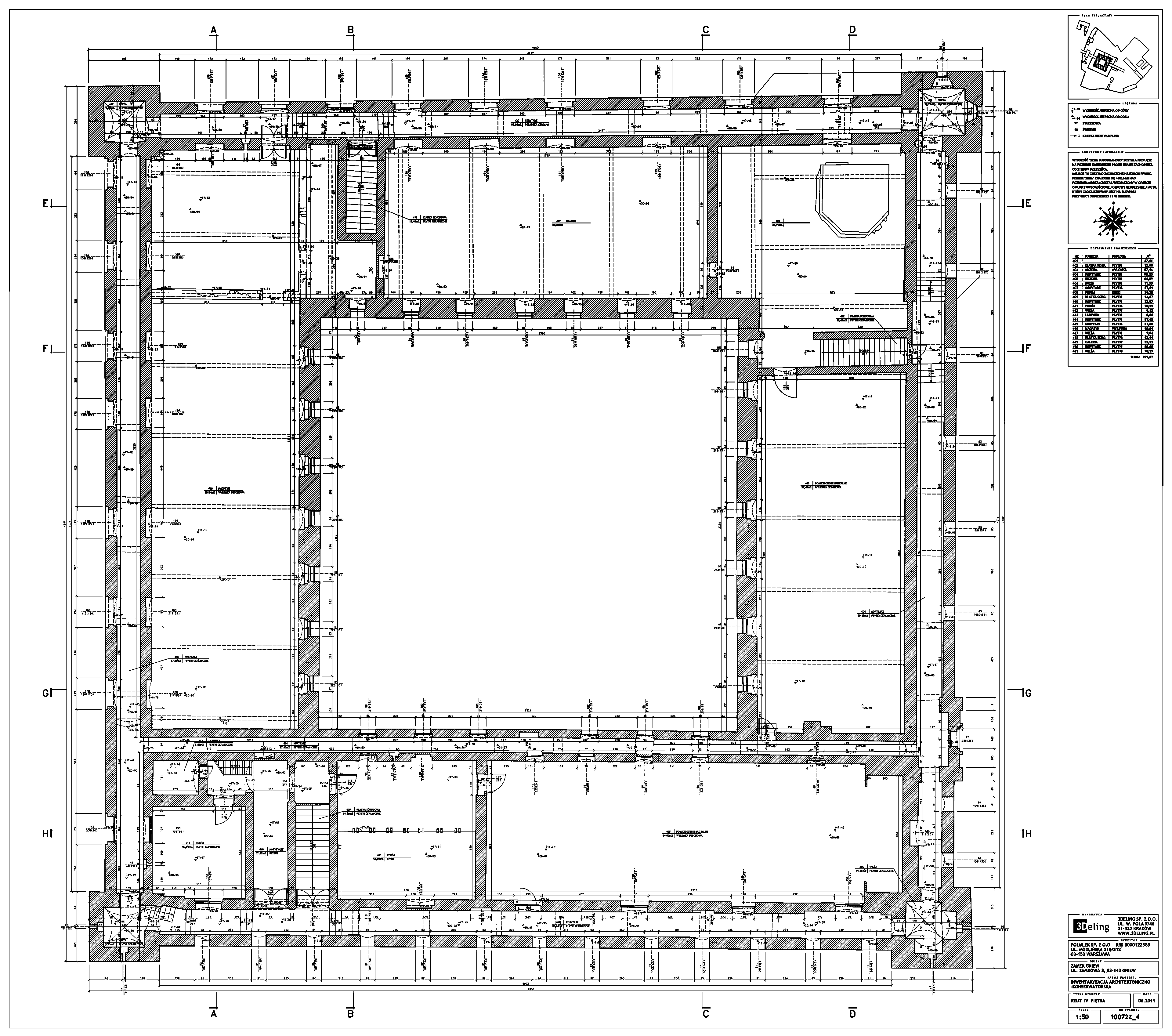
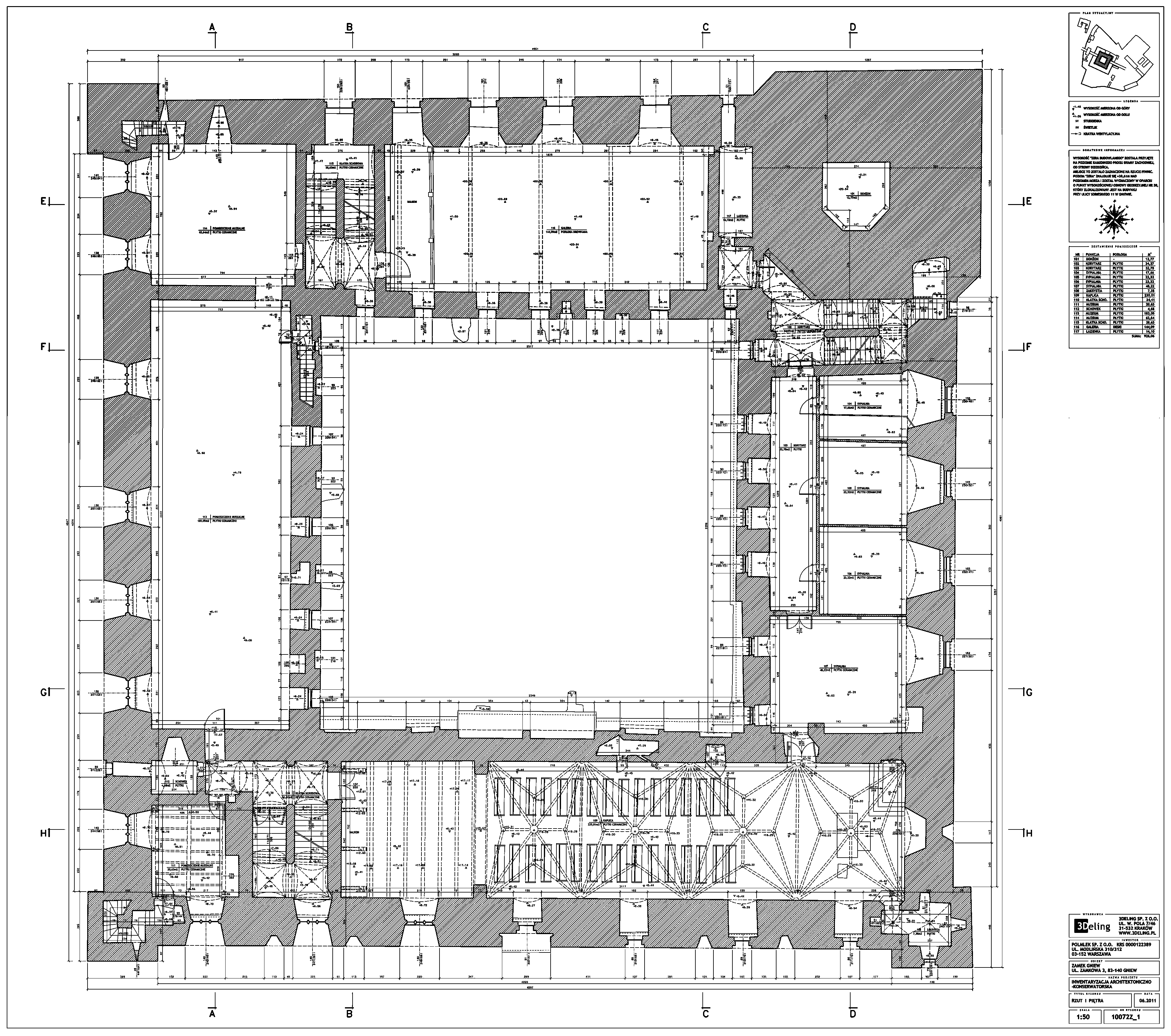
Хмара точок, TruViews, плани поверхів, розрізи та креслення фасадів.
ЛАЗЕРНЕ СКАНУВАННЯ ЗАМКУ У МІСТІ ГНЕВ
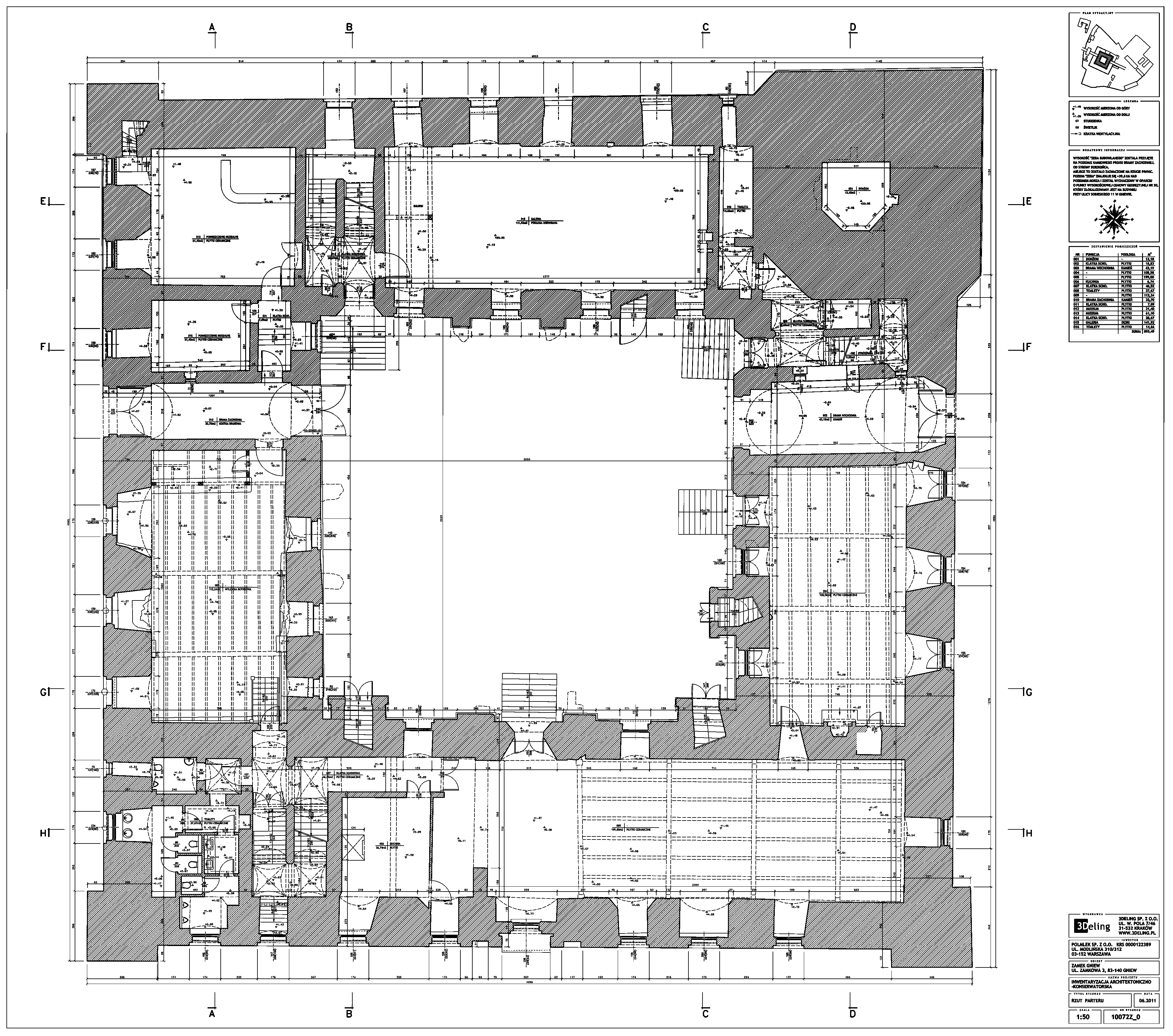
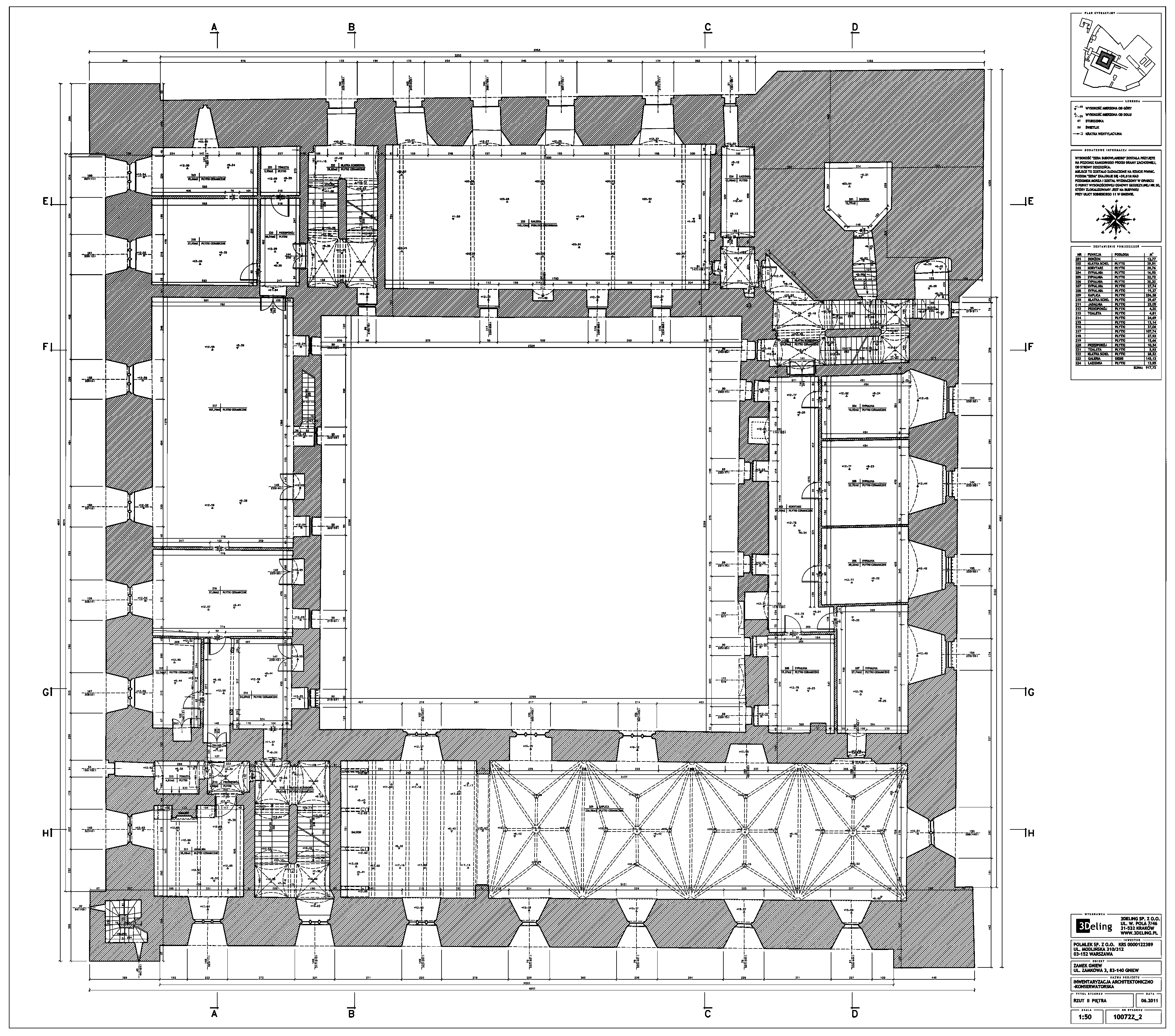
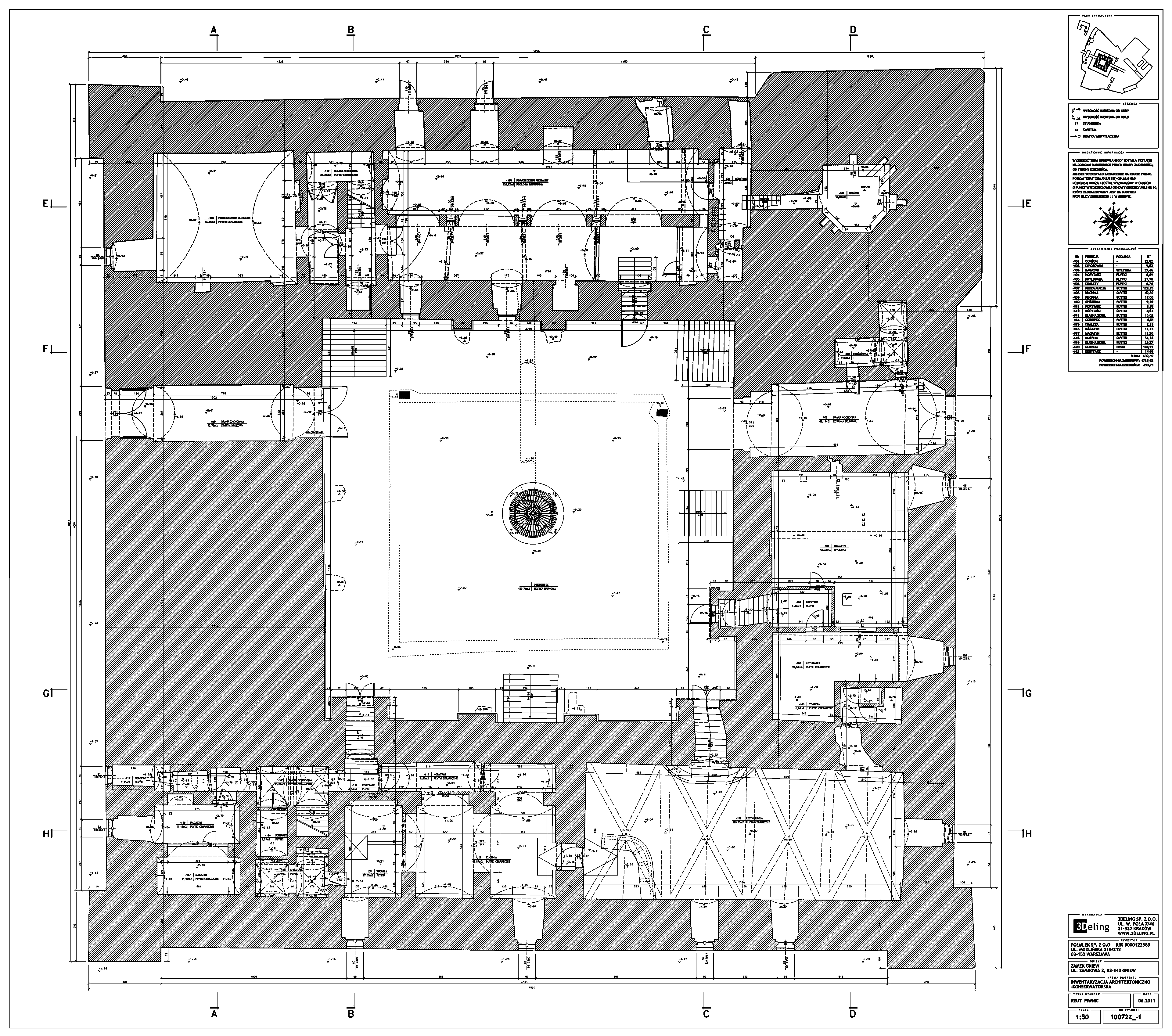
На початку 2011 року компанія 3Deling отримала контракт на проведення лазерного сканування середньовічного замку в місті Гнев, Польща. Об’єкт просканували повністю, включно з підвалом і горищем. Окремі скани (всього близько 800 позицій сканера) були об’єднані в одну систему координат. Згодом хмара точок була використана для створення повного 2D-набору даних для замку, у тому числі плани поверхів, розрізи та креслення фасадів.
Завдяки лазерному скануванню ми змогли зібрати повну просторову інформацію про цю величезну історичну будівлю. Точність сканування була підтверджена результатами звітів про перевірку. Двовимірні креслення були створені в програмі Bentley MicroStation V8i за допомогою плагіна Leica CloudWorx, що дозволяє відображати хмару точок у середовищі CAD.
Категорії:
































