МІСЦЕЗНАХОДЖЕННЯ
м. Лащув, Польща
ТОПОГРАФО-ГЕОДЕЗИЧНЕ ОБЛАДНАННЯ
Z+F imager 5010c та сканери Riegl VZ-400, Leica TCRA 1101, а також тахеометр
ЗАГАЛЬНА КІЛЬКІСТЬ ВИТРАЧЕНОГО ЧАСУ
2 дні на об’єкті, 20 днів оброблення даних – реєстрація сканувань, створення креслень та створення ортозображень
КІНЦЕВИЙ ПРОДУКТ
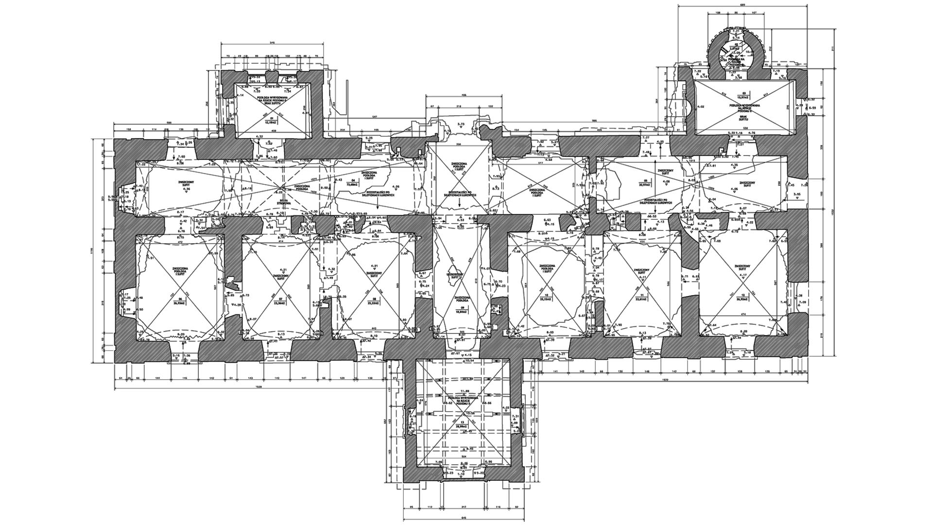
Хмара точок, TruView, ортозображення з хмари точок, креслення у CAD
ЛАЗЕРНЕ СКАНУВАННЯ ТА ГЕНЕРУВАННЯ ОРТОЗОБРАЖЕНЬ З ДАНИХ ХМАРИ ТОЧОК (МІСТО ЛАЩУВ)
Територія для сканування знаходилася в південно-східній частині Польщі, в невеликому містечку Лащув. Нинішній власник планує відновити руїни цієї резиденції 16-го століття. Через суворі правила, які стосуються об’єктів культурної спадщини, відповідальний архітектор замовив деталізоване сканування, щоб зафіксувати залишки наявної споруди з усіх боків. Ортографічні зображення були виготовлені, щоб детально відобразити положення та стан усіх цеглин будівлі, які залишилися.
Ми провели масштабне лазерне сканування разом із високоякісними фотографічними зображеннями у форматі RAW. Потім сканування та вказані зображення були об’єднані з метою створення хмари точок надзвичайно високої роздільної здатності разом із текстурованими сітчастими 3D-моделями. Розмір пікселя кінцевих надісланих даних становив 2 мм. Додатково до наданої інформації про оцінку сканування також було створене та надане відео. Ця інформація буде використана для допомоги клієнтові у зборі коштів і маркетингових ініціативах.
Категорії:




























